Nowa inwestycja! dom wolnostojący
Dom na sprzedaż, cena 770000 PLN, 5500 PLN/m2, powierzchnia 140 m2Chotum, mazowieckie, Polska








Ta oferta tylko u nas!
Jeśli szukasz domu wybudowanego w stanie deweloperskim w otoczeniu zieleni, do którego dojazd do centrum Ciechanowa jest szybki i sprawny - to ta ALTERNATYWA jest dla Ciebie!
LOKALIZACJA:
Chotum k. Ciechanowa
Dom położony w otoczeniu zieleni z dużą przestrzenią spacerową wśród łąk i lasku
- tylko 11 km od stacji PKP Ciechanów;
- 16 km do S7 – kierunek Gdańsk - Warszawa
- sklep 100 m,
- szkoła podstawowa, przedszkole (w niedługiej perspektywie żłobek) 500 m;
Przedstawiam do sprzedaż dom parterowy, wolnostojący w stanie deweloperskim:
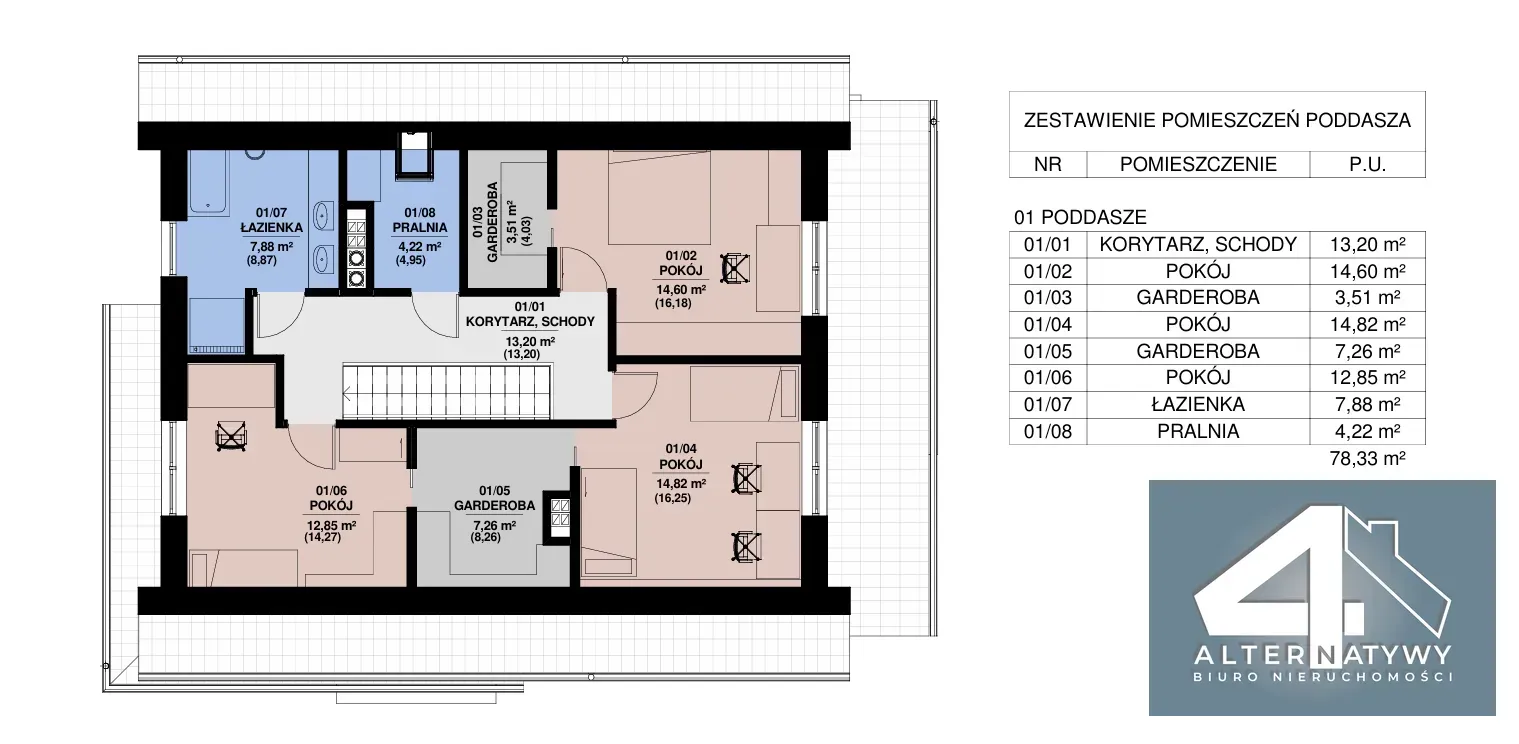
+ o powierzchni 139 m2 (parter 80,93 m2, piętro 78,33 m2 )
+ 3 sypialnie z własnymi garderobami, duży salon z aneksem kuchennym i spiżarnią,
+ usytuowany na działce o powierzchni 500-720 m2
>> w cenie 770 000 zł.
Włodek Styś
604*231*992
e-mail: wlodzimierz.stys@4alternatywy.com
Rozkład pomieszczeń można zobaczyć na załączonym rzucie - w galerii zdjęć.
MEDIA:
- Instalacja C.O. z kotłem gazowym (ogrzewanie podłogowe), prąd, woda,
INFORMACJE TECHNICZNE:
> parametry budynku spełniają wszystkie wymagania wypisu i wyrysu z planu zagospodarowania przestrzennego
> powierzchnia zabudowy: 175,19 m2
> powierzchnia użytkowa: 139 m2
> kubatura budynku: 755 m3
> ogrzewanie podłogowe
> materiał budowlany: cegła czerwona;
> ocieplenie warstwą styropianu, otynkowane ( ocieplone poddasze )
> ściany wewnętrzne: ściany działowe;
> dach: pokryty blachodachówką
> okna PCV 3- szybowe
> tynki wewnętrzne - cementowo - wapienny maszynowy bez gładzi i malowania
> od strony ogrodu znajduje się taras
> teren ogrodzony
POMIESZCZENIA:
- salon z jadalnią 25,58 m2
- kuchnia 13,18m2 + pomieszczenie techniczne 7,13 m2
- pokój/sypialnia (nr 1) 14,60 m2 + garderoba 3,51 m2
- pokój/sypialnia (nr 2)14,82 m2 + garderoba 7,62 m2
- pokój/sypialnia (nr 3)12,85 m2
- łazienka 7,88m2
- pralnia 4,22 m2
- przedpokój 7,48 m2
- wiatrołap 3,61 m2
TERENY REKREACYJNE:
- tereny zielone - duża przestrzeń spacerowa, możliwość uprawiania wielu rodzajów sportów,
- w pobliżu rzeka (1 km), las (1 km),
Zapraszam do kontaktu:
Włodek Styś
604*231*992
e-mail: wlodzimierz.stys@4alternatywy.com
Zapewniamy kompleksową obsługę finansową i prawną przy zakupie nieruchomości.
POMAGAMY W UZYSKANIU NAJLEPIEJ DOPASOWANEGO DO POTRZEB KREDYTU.
Ogłoszenie to nie stanowi oferty w rozumieniu Kodeksu Cywilnego, a dane w nim zawarte mają jedynie charakter informacyjny i mogą ulec zmianie.
Jeśli szukasz domu wybudowanego w stanie deweloperskim w otoczeniu zieleni, do którego dojazd do centrum Ciechanowa jest szybki i sprawny - to ta ALTERNATYWA jest dla Ciebie!
LOKALIZACJA:
Chotum k. Ciechanowa
Dom położony w otoczeniu zieleni z dużą przestrzenią spacerową wśród łąk i lasku
- tylko 11 km od stacji PKP Ciechanów;
- 16 km do S7 – kierunek Gdańsk - Warszawa
- sklep 100 m,
- szkoła podstawowa, przedszkole (w niedługiej perspektywie żłobek) 500 m;
Przedstawiam do sprzedaż dom parterowy, wolnostojący w stanie deweloperskim:
+ o powierzchni 139 m2 (parter 80,93 m2, piętro 78,33 m2 )
+ 3 sypialnie z własnymi garderobami, duży salon z aneksem kuchennym i spiżarnią,
+ usytuowany na działce o powierzchni 500-720 m2
>> w cenie 770 000 zł.
Włodek Styś
604*231*992
e-mail: wlodzimierz.stys@4alternatywy.com
Rozkład pomieszczeń można zobaczyć na załączonym rzucie - w galerii zdjęć.
MEDIA:
- Instalacja C.O. z kotłem gazowym (ogrzewanie podłogowe), prąd, woda,
INFORMACJE TECHNICZNE:
> parametry budynku spełniają wszystkie wymagania wypisu i wyrysu z planu zagospodarowania przestrzennego
> powierzchnia zabudowy: 175,19 m2
> powierzchnia użytkowa: 139 m2
> kubatura budynku: 755 m3
> ogrzewanie podłogowe
> materiał budowlany: cegła czerwona;
> ocieplenie warstwą styropianu, otynkowane ( ocieplone poddasze )
> ściany wewnętrzne: ściany działowe;
> dach: pokryty blachodachówką
> okna PCV 3- szybowe
> tynki wewnętrzne - cementowo - wapienny maszynowy bez gładzi i malowania
> od strony ogrodu znajduje się taras
> teren ogrodzony
POMIESZCZENIA:
- salon z jadalnią 25,58 m2
- kuchnia 13,18m2 + pomieszczenie techniczne 7,13 m2
- pokój/sypialnia (nr 1) 14,60 m2 + garderoba 3,51 m2
- pokój/sypialnia (nr 2)14,82 m2 + garderoba 7,62 m2
- pokój/sypialnia (nr 3)12,85 m2
- łazienka 7,88m2
- pralnia 4,22 m2
- przedpokój 7,48 m2
- wiatrołap 3,61 m2
TERENY REKREACYJNE:
- tereny zielone - duża przestrzeń spacerowa, możliwość uprawiania wielu rodzajów sportów,
- w pobliżu rzeka (1 km), las (1 km),
Zapraszam do kontaktu:
Włodek Styś
604*231*992
e-mail: wlodzimierz.stys@4alternatywy.com
Zapewniamy kompleksową obsługę finansową i prawną przy zakupie nieruchomości.
POMAGAMY W UZYSKANIU NAJLEPIEJ DOPASOWANEGO DO POTRZEB KREDYTU.
Ogłoszenie to nie stanowi oferty w rozumieniu Kodeksu Cywilnego, a dane w nim zawarte mają jedynie charakter informacyjny i mogą ulec zmianie.
| Informacje podstawowe | ||
|---|---|---|
| Rodzaj nieruchomości | Dom | |
| Rodzaj transakcji | Sprzedaż | |
| Rynek | Pierwotny | |
| Województwo | mazowieckie | |
| Miejscowość | Chotum | |
| Prąd (przyłącze) | Tak | |
| Woda (przyłącze) | Tak | |
| Gaz (przyłącze) | Nie | |
| Kanalizacja | Nie | |
| Warunki zabudowy | Tak | |
| Parking | Tak | |
| Rodzaj budynku | Wolnostojący | |
| Rok budowy | 2025 | |
| Informacje dodatkowe | ||
|---|---|---|
| Powierzchnia działki | 500 | |
| Położenie działki | Teren płaski | |
| Kształt działki | Prostokąt | |
| Liczba pięter | 1 | |
| Liczba pokoi | 4 | |
| Liczba sypialni | 3 | |
| Liczba łazieniek | 2 | |
| Stan obiektu | Deweloperski | |
| Rodzaj kuchni | Oddzielna | |
| Materiał | Pustak | |
| Technologia | Tradycyjna | |
| Zadaszenie (materiał) | Blachodachówka | |
| Ogrzewanie | Podłogowe | |
| Dostępność | Do uzgodnienia | |
| Balkon | Nie | |
| Loggia | Nie | |
| Taras | Tak | |
| Ogród | Tak | |
| Piwnica | Nie | |
| Poddasze | Tak | |
| Winda | Nie | |
| Otoczenie | ||
|---|---|---|
| Otoczenie | Osiedle domów jednorodzinnych | |
| Głośność | Cicho | |
| Las | Tak | |
| Łąka | Tak | |
| Góry | Nie | |
| Jezioro | Nie | |
| Rzeka | Tak | |
| Morze | Nie | |
| Park | Nie | |
| Bank | Tak | |
| Restauracja | Tak | |
| Bar / pub | Tak | |
| Szkoła podstawowa | Tak | |
| Liceum / Technikum | Tak | |
| Uczelnia | Tak | |
| Żłobek | Nie | |
| Przedszkole | Tak | |
| Basen | Tak | |
| Fitnes | Tak | |
| Pralnia | Nie | |
| Apteka | Tak | |
| Fryzjer | Tak | |
| Supermarket | Tak | |
| Sklep spożywczy | Tak | |
| Weterynarz | Tak | |
Kontakt:
Włodzimierz Styś
Tel.: 604 231 992
Nr ref.: O-17843
Włodzimierz Styś
Tel.: 604 231 992
Nr ref.: O-17843
